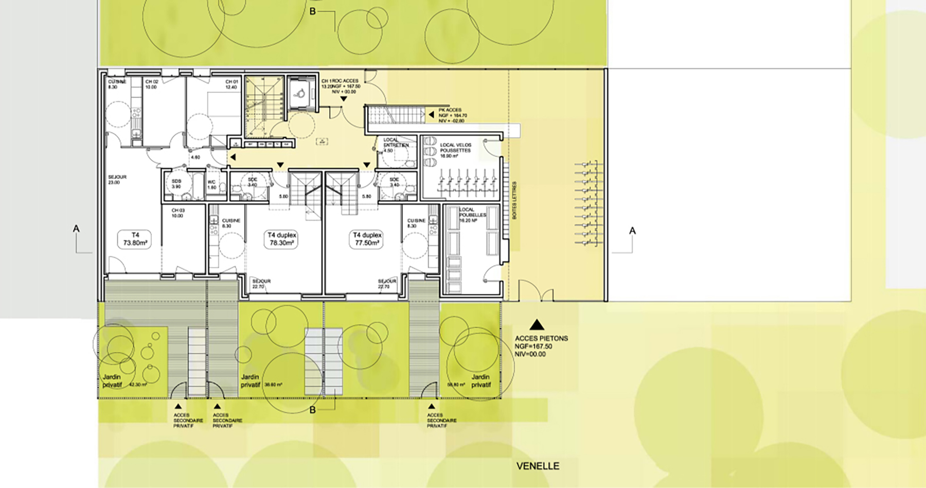
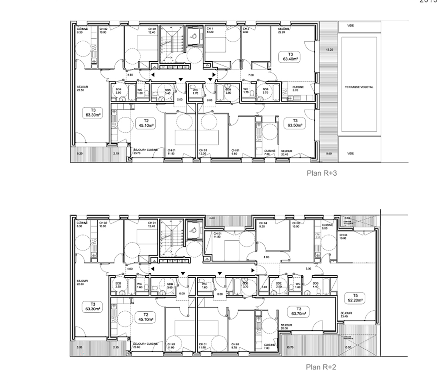
29 viviendas plurifamiliares à Confluencia de Lyon, Francia
Programa : 29 Viviendas sociales, Lyon Confluence, Francia
Propietario del proyecto : OPAC del Ródano
Superficie: 2120 m²
Presupuesto : 2,6M
Fase : Competición (2º puesto)
Año : 2012
Propietario del proyecto : OPAC del Ródano
Superficie: 2120 m²
Presupuesto : 2,6M
Fase : Competición (2º puesto)
Año : 2012
El edificio se compone de tres momentos: una base, un volumen emergente y una pausa intermedia.
El zócalo se ha tratado de manera que se integre en las tiendas del edificio previsto en la parcela vecina, mediante su tratamiento (materiales, dibujo, filtro, color neutro).
El volumen emergente se trata como un único emergente. La aparición traduce una volumetría descompuesta a la vez por los principios de orientación y de exposición solar, pero también por la voluntad de crear un volumen disociado de la base. Se trata de un volumen esculpido con materiales y texturas de densidad variable, de color champán, que filtra la luz y protege la intimidad.
La unión entre los dos volúmenes está empotrada, es deliberadamente sencilla y carece de diseño.
El volumen resultante de la aplicación del PLU se ha descompuesto en sus dos fachadas meridionales, creando espacios huecos protegidos del sol, lo que ha dado lugar a generosas aberturas para el máximo soleamiento de los pisos y, por tanto, a una importante contribución energética. En cambio, el volumen se ha dejado intacto en sus dos caras norte, con perforaciones controladas para que haya la menor pérdida de calor.







